Résidence Jeunes Actifs Poitiers - 86












Résidence jeunes actifs de 100 logements à Poitiers
Le projet s’insère dans un site marqué par l’urbanisme et l’architecture moderniste de la première moitié du 20eme siècle. Une empreinte forte, dotée de nombreuses qualités avec lesquelles il convient de dialoguer : fonctionnalisme, rationalité des bâtiments, sujets paysagers remarquables, espaces publics généreux…
En dialogue avec l’environnement moderniste du quartier, le parti architectural retenu développe une lecture rationnelle du projet basée sur les atouts du site et la réalité fonctionnelle et constructive du bâtiment.
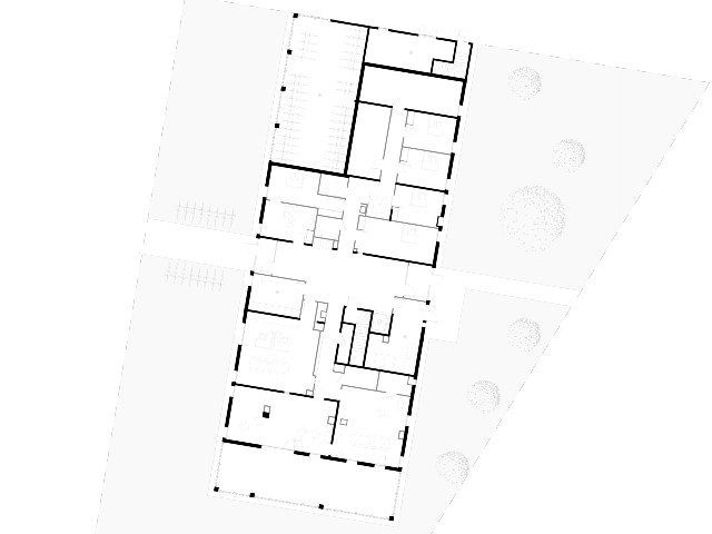
Le projet vient en prolongement des enjeux définis par l'analyse urbaine qui en compose sa volumétrie. Partant du volume d'intention urbaine, son évolution est définie en 4 temps : Affirmer Le sud, séparer les fonctions du programme, affiner le volume en fonction des usages, reconstituer l'unité du projet.
Dans la continuité du principe de l’ossature habitée, et reconfigurable, nous avons cherché à préfabriquer et à standardiser un maximum d’élément de la construction. L’objectif étant de toujours rationaliser le projet pour en extraire sa vérité. Ainsi les éléments de remplissage du squelette sont formés par un mur à ossature bois qui, au-delà de ses qualités environnementales, génère une épaisseur minimale de la façade au profit de l’habitabilité du logement.
Da


