Clinique SSR de 65 lits | CHEVICA Chevilly Larue - 94



Démolition partielle, restructuration et extension d'un ensemble immobilier pour l'établissement d'1 ERP, une clinique SSR de 65 lits
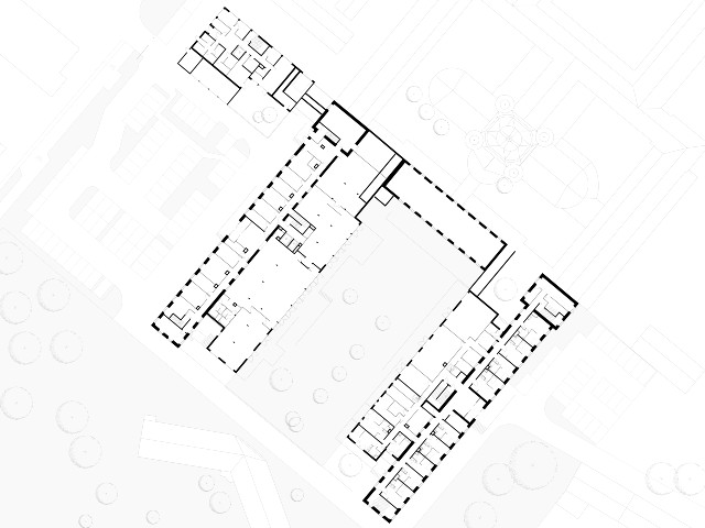
Le projet s’inscrit dans le cadre de la restructuration des bâtiments de la congrégation Union notre Dame de Charité à Chevilly la Rue. Celui-ci se présente comme un ensemble classique de bâtiment en pierre enroulé en U autour d’un cloitre central derrière lequel se profile la silhouette élancée de l’église.
De nouveaux programmes vont venir s’implanter dans cet ensemble dont une clinique de soin de suite dans l’aile ouest. Le programme prévoit des espaces d’hébergement (chambres individuelles et doubles) dans l’aile existante et les locaux communs (restauration, accueil, activités) dans une aile neuve greffée. La greffe joue le jeu d’un fort contraste volumétrique et matériel avec l’existant : horizontalité, balcons filant, toiture débordante, bardage bois.


