îlot Saint Simon, Lyon 9 : Pension de famille et résidence Sociale | ARALLY Lyon - 69

îlot Saint Simon, Lyon 9 : Pension de famille et résidence Sociale 1 îlot Saint Simon, Lyon 9 : Pension de famille et résidence Sociale 2 îlot Saint Simon, Lyon 9 : Pension de famille et résidence Sociale 3

La résidence Aralis s’inscrit dans le projet urbain de l’îlot Saint Simon, qui vise à restructurer un tènement triangulaire, serti entre la rue Marietton et le Boulevard de le Duchère. Cet ensemble, très décousu, présente les caractéristiques d’un tissu faubourien mixant immeubles de rapports et entrepôts industriels. A terme, le projet sera mitoyen d’un parc public.

L’insertion vise :

  • A préserver l’identité du terrain en lanière et exploiter au mieux son étroitesse.
  • A redéfinir un front bâti structurant sur la rue Marietton.
  • A tirer parti des atouts du futur parc urbain, en termes de vues et de confort.
  • A préserver un maximum d’arbres existants sur le terrain.

Les atouts du plan masse reposent :

  • Sur la restitution de l’expression d’un îlot couronne – clarifiant l’agencement du nouveau tissu urbain.
  • Sur l’agencement de 3 volumes très minces, adaptés à la morphologie du lieu.
  • Sur la création de césures toute hauteur, sanctuarisant des vues profondes sur le cœur d’îlot paysager.
  • Sur la composition d’une nouvelle façade urbaine singulière sur la rue Marietton :
    • Qui génère des volumes dynamiques visibles de loin dans la profondeur de la rue.
    • Qui libère un petit parvis d’accueil, propice à la rencontre et au lien social.
  • Sur une limitation des vis-à-vis et des ombres portées sur la propriété voisine.

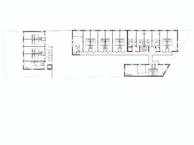
Les logements de type T1 ou T2 sont desservis par des coursives et sont 100% traversants.

La majorité d’entre eux bénéficie d’une vue principale (pièce de vie) dégagée vers le paysage environnant et d’une vue secondaire (cuisine, coin repas) sur le cœur d’îlot.

Surface : 2520m² SP
Performance : Re2020, seuil 2025 / référentiel habitat durable du Grand Lyon
Maîtrise d’Ouvrage : ARALIS
Maîtrise d’Oeuvre : Séméio Architecture / FACEA - BET TCE / AI Environnement - HQE / BC Ingénierie - VRD / Link Acoustique
Date : 2024
îlot Saint Simon, Lyon 9 : Pension de famille et résidence Sociale 1 îlot Saint Simon, Lyon 9 : Pension de famille et résidence Sociale 2 îlot Saint Simon, Lyon 9 : Pension de famille et résidence Sociale 3 îlot Saint Simon, Lyon 9 : Pension de famille et résidence Sociale 4 îlot Saint Simon, Lyon 9 : Pension de famille et résidence Sociale 5